hi-reach hi-reach
 
hi-reach
hi-reach
 
Hi-reach
 
hi-reach
Products
hi-reach Scaffoldings
hi-reach Beam Clamps
hi-reach Column Clamps
hi-reach Slab Decking
hi-reach Wall Formwork
hi-reach Mobile Towers
hi-reach Road Forms
hi-reach Access Straircase
hi-reach Accessories
hi-reach Certification
   
hi-reach
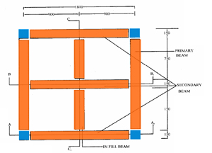
Waffle Slab
 

Quick strip system can be used very conveniently for supporting In situ or pre-cast waffle moulds of size 900mm x 900 mm.

Salient features are:

  • Light weight interchangeable primary and secondary beams carried by Drop Heads form accurate grids.
  • Robust construction to with stand site abuse with long life and less maintenances.
  • Wide Beam flanges for supporting moulds.
  • Early striking facility incorporated using well proven Drop Head System.
  • Beams can be used with cuplok scaffolding system or standard props.
  • Early striking facility allows Beams and Moulds to be reused while the concrete remains supported during curing, thereby reducing the overall amount of equipment required.


hi-reach

hi-reach
hi-reach hi-reach
 
hi-reach
hi-reach
 
Hi-reach  
 
Contact Us
Hi-Reach House, D-147, Okhla Industrial Area,
Phase-1, New Delhi-110020, India

Phone : +91 11 46619100/41708975/76
Fax     : +91 11 26371085/46619120
Email   : sales@hireach.co.in
             mail.hireach@gmail.com